Filters
Buy/Rent Buy
  • Buy
  • Rent
Bedrooms
Covered Area
Floor Number
Year Built
Covered Parking
Uncovered Parking
For Sale

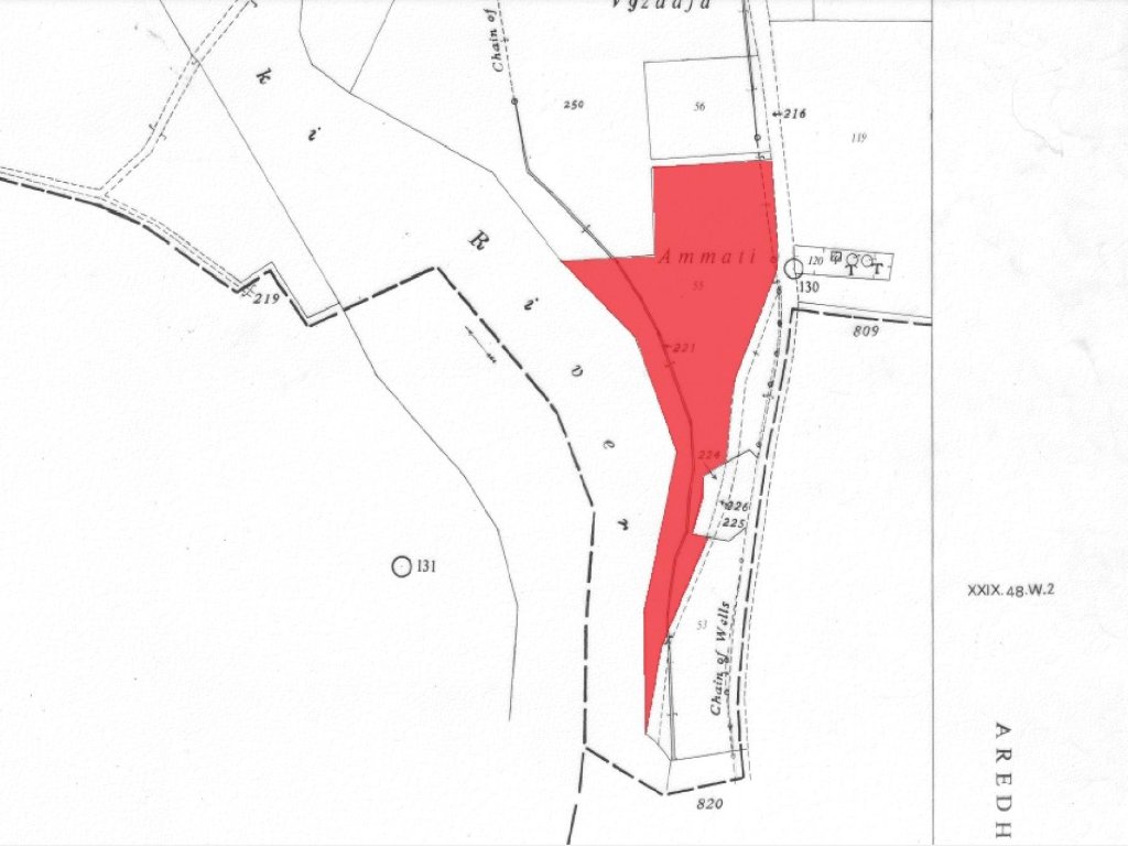
For Sale, Land, Field, Nicosia, Agios Ioannis, 10,502m²

Nicosia, Agios Ioannis
38,000€
ref 43229
land_type Field
town_planning_zone Agricultural
plot_area_amount 10,502m²

Description

🌳 Field for Sale in Agios Ioannis Community – Unique Opportunity in a Peaceful Location 🌳
Presented by G. Plazarou Real Estate, this field is located in the Agios Ioannis Community, within the Nicosia District. The property is situated approximately 700 meters south of the community center and about 1.1 km north of Griva Digeni Avenue, offering easy access to both the town and main roads.

The field has an irregular shape and a slightly inclined surface, providing a natural landscape ideal for agricultural or conservation purposes. It abuts a public registered road along its eastern boundary (Kyriakou Matsi Street and Agios Markos Street), with a generous frontage of approximately 250 meters, ensuring excellent accessibility.

The property falls within the Protection Zone Z1, with a building density of 6%, meaning it is primarily intended for conservation and limited development. Notably, the property lies within a consolidation area, offering potential for future planning and development opportunities.

This is a great investment for those looking for a peaceful retreat or interested in land conservation in a tranquil community.

Features

Details

City: Agios Ioannis
Land Type: Field
Town Planning Zone: Agricultural
Cover Factor: 6%
Building Density: 6%
Storeys Max Floor: 2
Title Deeds:
Share: 1/1
Height: 8.30m

Areas

Plot Area: 10,502m²

Main Features

Zone: Ζ1

The information displayed about this property comprises a property advertisement. G&P Lazarou Estate Agents makes no warranty as to the accuracy or completeness of the advertisement or any linked or associate information. This property advertisement does not constitute property particulars. Please contact us if you believe any of the information is listed incorrectly by calling: 77777771 or email us at [email protected] quoting the property reference no.

Arrange a Viewing